Vous êtes dans : Accueil > Annonces médicales > Immobilier : Location de cabinet médical et paramédical
programme neuf : "MAISON DE SANTÉ" - Bruz
A Bruz (35), au sud de Rennes, nous vous présentons la "MAISON DE SANTÉ"
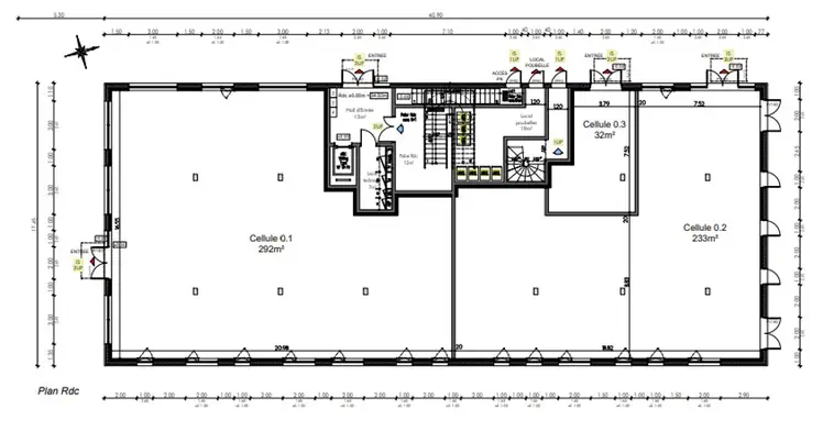
Bâtiment sur 4 niveaux, totalisant 2000 m² et intégrant plusieurs plateaux divisibles.
Nombreuses possibilités de surfaces de 20 m² à 300 m² environ. (nous consulter)
Programme neuf de bureaux spécialements dédiés aux activités médicales.
Plateaux livrés aménagés, non-cloisonnés et rafraîchis.
Le dernier niveau prévoit des espaces disponibles plus petits avec de nombreux espaces partagés.
Possibilité de salles d'attente mutualisées.
Batîment classé ERP 4ème catégorie.
Places de stationnement en sous-sol et parking extérieur. Bon ratio de parkings attribués.
Livraison prévue en 2027.
Conditions financières, nous consulter. 02 99 830 820
Annonce n°338057 publiée par un professionnel
Géolocalisation de l'annonce
Information sur la commune de BRUZ
BRUZ est une commune d'une superficie de 29.95 km² située dans le 35 (ILLE ET VILAINE). Son altitude varie entre 12 et 99 mètres. Sa latitude est de 48.0333 et sa longitude de -1.75.
La population de BRUZ était de 13181 habitants en 1999, 16465 habitants en 2010, 15600 en 2012. Sa densité de population était de 549 habitants par km² en 2010.
Le code postal de BRUZ est 35170 et son code INSEE est 35047.

