Vous êtes dans : Accueil > Annonces médicales > Immobilier : Location de cabinet médical et paramédical
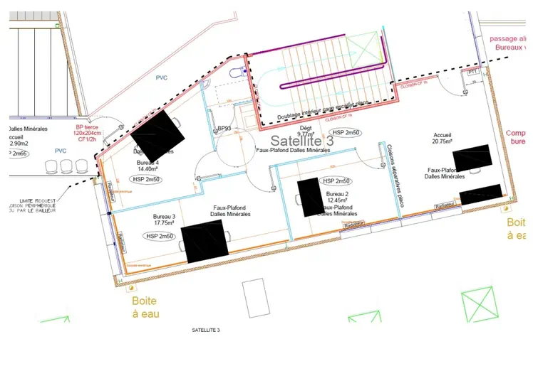
Location Cabinet médical 80 m² - PONTIVY
Nous vous proposons un local idéalement agencé pour un cabinet médical : 80 m² à PONTIVY;
Ces locaux sont situés dans un immeuble récent, avec accès PMR, ascenseur.
Belle visibilité dans une zone fréquentée et à proximité des axes principaux.
Loyer : consultez-nous !
réf Blot : 5158-63
Annonce n°340851 publiée par un professionnel
Géolocalisation de l'annonce
Information sur la commune de PONTIVY
PONTIVY est une commune d'une superficie de 24.85 km² située dans le 56 (MORBIHAN). Son altitude varie entre 48 et 192 mètres. Sa latitude est de 48.0667 et sa longitude de -2.98333.
La population de PONTIVY était de 13501 habitants en 1999, 13765 habitants en 2010, 13700 en 2012. Sa densité de population était de 553 habitants par km² en 2010.
Le code postal de PONTIVY est 56300 et son code INSEE est 56178.

