Vous êtes dans : Accueil > Annonces médicales > Immobilier : Vente de cabinet médical et paramédical
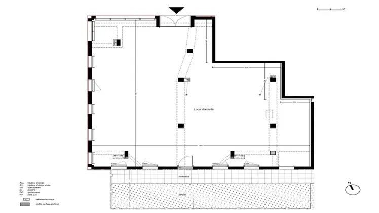
A VENDRE - LOCAUX PROFESSIONNELS - 213 m² ST HERBLAIN
A VENDRE, sur la commune de SAINT HERBLAIN (44), Nord-Ouest de NANTES
idéal professions médicales
Nous vous proposons une cellule de locaux professionnels de plain-pied dans un immeuble NEUF (RT 20215 - règlementation thermique)
=> 213 m² environ.
Aménagements à prévoir selon vos besoins.
Locaux situés sur un axe passant, au pied du chronobus.
Très belle visibilité en face du carrefour de Saint-Herblain.
Livraison prévue pour 2027.
Contactez-nous !
Réf BLOT : 1177-23
Annonce n°337890 publiée par un professionnel
Géolocalisation de l'annonce
Information sur la commune de ST HERBLAIN
ST HERBLAIN est une commune d'une superficie de 30.02 km² située dans le 44 (LOIRE ATLANTIQUE). Son altitude varie entre 1 et 64 mètres. Sa latitude est de 47.2167 et sa longitude de -1.65.
La population de ST HERBLAIN était de 43728 habitants en 1999, 43153 habitants en 2010, 43200 en 2012. Sa densité de population était de 1437 habitants par km² en 2010.
Le code postal de ST HERBLAIN est 44800 et son code INSEE est 44162.

