Vous êtes dans : Accueil > Annonces médicales > Immobilier : Vente de cabinet médical et paramédical
Vente cabinet 82m2 - 4 cabinets - 75005 - Clinique Geoffroy Saint Hilaire
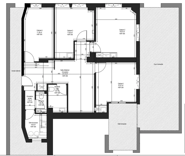
Situé au cœur du très recherché 5ᵉ arrondissement de Paris, à deux pas de la clinique Geoffroy Saint-Hilaire, ce cabinet médical entièrement refait à neuf constitue une opportunité rare pour les professionnels de santé ou investisseurs à la recherche d’un emplacement premium.
D’une surface totale de 82 m², ce local en rez-de-chaussée offre une organisation optimale et fonctionnelle. Il se compose de quatre salles de consultation, d’une superficie comprise entre 10 et 14 m², toutes baignées de lumière naturelle grâce à de grandes fenêtres, dans une rue particulièrement calme — un véritable atout pour le confort des praticiens comme des patients.
Le cabinet dispose également :
- d’une grande salle d’attente accueillante,
- d’un toilette PMR (personnes à mobilité réduite), conforme aux normes en vigueur,
- d’un toilette privé,
- d’une salle de pause dédiée,
- d’un point d’eau dans chaque salle de consultation (à l’exception d’une)
- d'une entrée indépendante sur rue.
Les volumes sont bien pensés, la circulation fluide, et l’ensemble a été rénové avec soin : aucun travaux à prévoir. Il ne reste plus qu’à personnaliser la décoration pour créer un lieu chaleureux et à votre image.
Son emplacement privilégié, sa visibilité, sa luminosité et sa proximité immédiate d’un pôle médical reconnu en font un bien particulièrement attractif et recherché, idéal pour un cabinet médical, paramédical ou pluridisciplinaire.
Prix de vente : 1 022 900 € FAI
Un bien clé en main, rare sur le secteur, à découvrir sans tarder.
📞 Contactez-nous pour organiser une visite et laissez-vous séduire par ce lieu à fort potentiel.
Annonce n°340210 publiée par un professionnel
Géolocalisation de l'annonce
Information sur la commune de PARIS 5EME ARRONDISSEMENT
PARIS 5EME ARRONDISSEMENT est une commune d'une superficie de km² située dans le (PARIS). Son altitude varie entre et mètres. Sa latitude est de 0 et sa longitude de 0.
La population de PARIS 5EME ARRONDISSEMENT était de habitants en 1999, habitants en 2010, en 2012. Sa densité de population était de habitants par km² en 2010.
Le code postal de PARIS 5EME ARRONDISSEMENT est 75005 et son code INSEE est 75056.


